Line up
商品プラン
WIN
完全自由設計で実現する
あなたらしい家
【参考価格】70万円/坪〜
お客様との対話を何より大切にする私たちの「完全自由設計」は、決まった型に当てはめるのではなく、お一人おひとりの想いや憧れを丁寧にすくい上げるところから始まります。
好きなこと、大切にしている時間、将来の夢──そのすべてをお聞かせください。間取りもデザインも仕様も、すべてゼロから一緒に考え、世界にひとつだけの住まいを形にしていきます。
カタログにはない、家づくりを 趣味を楽しむスペースや、家事がしやすい動線、ペットと快適に暮らせる工夫も思いのまま。構造や費用の面で、思い通りの実現が難しい場合も、納得のいく結論が出るまでとことん寄り添います。
カタログにはない、家づくりを
趣味を楽しむスペースや、家事がしやすい動線、ペットと快適に暮らせる工夫も思いのまま。構造や費用の面で、思い通りの実現が難しい場合も、納得のいく結論が出るまでとことん寄り添います。
CHARMANT
多彩なプランから「好き」を
選んで叶えるお気に入りの家
【参考価格】60万円/坪〜
「家を建てたいけれど、時間や費用のことを考えると不安…」「でも、自分たちらしさも大切にしたい」そんな想いに寄り添うのが、規格住宅「シャルマン」です。
暮らしやすさとデザイン性を両立させたプランを多数ご用意。一から考える負担がなく、打ち合わせもスムーズ。家づくりの過程を焦らず楽しんでいただけます。さらに内装や設備は、ご家族の好みに合わせてセレクト可能。手間や不安を減らしながらも、“わたしたちらしさ”をきちんと詰め込める――そんなやさしい家づくりをお届けします。
暮らしやすさとデザイン性を両立させたプランを多数ご用意。一から考える負担がなく、打ち合わせもスムーズ。家づくりの過程を焦らず楽しんでいただけます。さらに内装や設備は、ご家族の好みに合わせてセレクト可能。手間や不安を減らしながらも、“わたしたちらしさ”をきちんと詰め込める――そんなやさしい家づくりをお届けします。
選べるプランは
約200種類!
趣味を楽しむスペースや、家事がしやすい動線、ペットと快適に暮らせる工夫も思いのまま。構造や費用の面で、思い通りの実現が難しい場合も、納得のいく結論が出るまでとことん寄り添います。
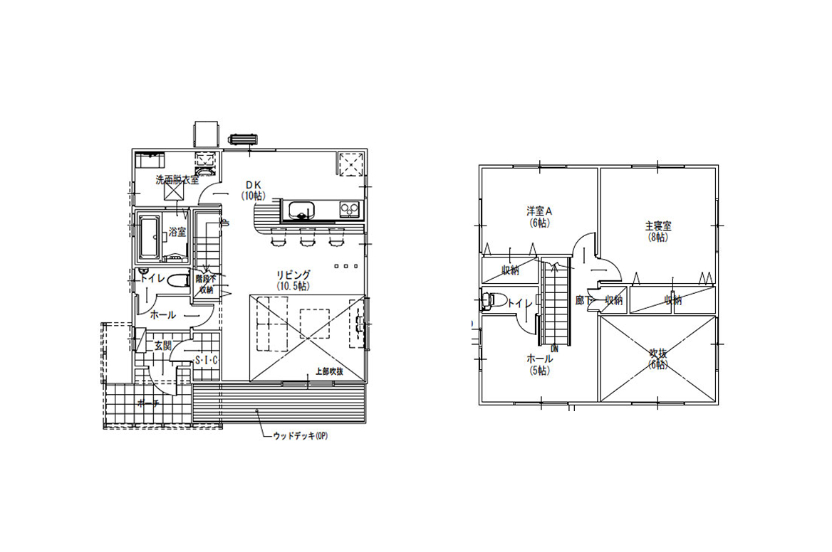
軒ゼロの
モダン住宅
モダン住宅
タタミの
ある暮らし
ある暮らし
家族に優しい
平屋の住まい
平屋の住まい
四角を組み合わせた建物で周りの景色に調和。目隠しの横格子が建物をグッと引き締めた印象にしてくれます。
-
1F床面積
52.17㎡(15.75坪)
-
2F床面積
43.06㎡(13.00坪)
-
延床面積
95.23㎡(28.75坪)
ワンルームになる和室は小さいお子様や来客時にとても便利。タタミの匂いのある空間で癒しの生活を満喫。
-
1F床面積
51.34㎡(15.50坪)
-
2F床面積
49.68㎡(15.00坪)
-
延床面積
101.02㎡(30.50坪)
家族が集うLDKとプライベートルームを東西に分けたプラン。広いホールは介護しやすいよう配慮しています。
-
1F床面積
103.51㎡(31.25坪)
-
延床面積
103.51㎡(31.25坪)
GRACE ワンランク上の「本当に叶えたい暮らし」を実現する家
【参考価格】85万円/坪〜
理想をとことん叶えたい方のための、ワンランク上の完全自由設計プラン。標準仕様からさらにグレードアップした設備や素材をお選びいただけるほか、敷地条件やライフスタイルに合わせた大胆な間取り設計も自由自在です。動線や空間演出、細部の意匠まで妥協せず、建築士とじっくり対話しながら世界に一つだけの住まいを創り上げます。
「本当に叶えたかった暮らし」が形になる、特別な家づくりです。
高いデザイン性と
標準仕様
暮らしやすさと美しさを兼ね備えた設計に加え、設備もおしゃれで高性能なものを標準採用。キッチンや水まわり、建具や照明に至るまで、デザイン性と機能性を両立したアイテムを厳選しています。
-
圧倒的な開放感を演出する
ハイサッシ・ハイドア -
クリナップ
STEDIA -
Panasonic
C LINE -
素材の温もりを感じる
天然木の床材
資料請求予約フォーム
